Aktuelle Häuser zum Kauf bei Schülke Immobilien!
Exposé HK0118
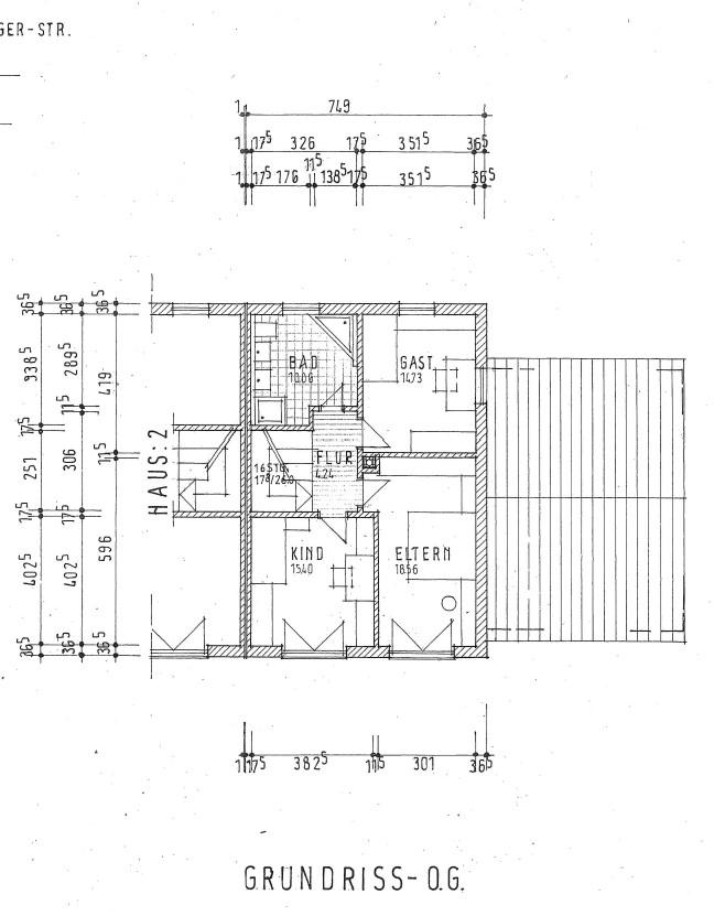
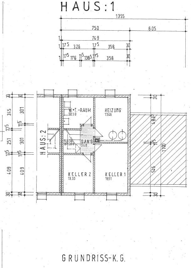
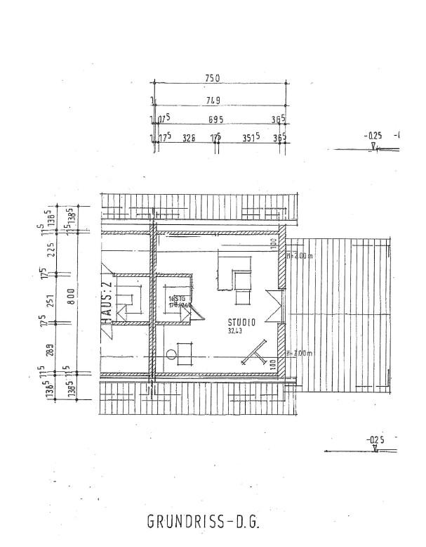
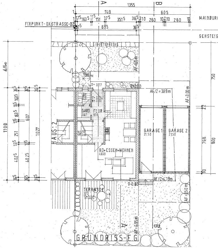
Ab sofort frei ! Doppelhaushälfte mit familienfreundlicher Aufteilung u. Doppel-Garage
- Objekt-Nr:HK0118
- Immobilienart:Doppelhaus
- Vermarktungsart:Kauf
- Adresse:85405 Nandlstadt
- Region:Deutschland
